Vooruit naar de oorsprong

Door: Maarten Engelman

Een tijd geleden wonnen we de aanbesteding van de Rijksgebouwendienst en de gemeente Roermond voor Het Arresthuis. Voordat ik aan het ontwerp begon dook ik in de rijke geschiedenis van dit stadsblok in Roermond. Ik haalde inspiratie voor de toekomst uit de oorsprong.

In 1665 werd een bisschoppelijk paleis gebouwd in Roermond. De laatste bisschop, Damianus, verbleef er van 1775 tot 1792. In die periode vond een modernisatie plaats. Na het vertrek van Damianus was het gebouw een militair hospitaal, magazijn en kazerne. Vanaf 1821 werd het gebruikt als rechtbank en huisvesting van de marechaussee. Op de hoek van het perceel kwam een stal. En in 1857 bouwde men naast de rechtbank een nieuw arresthuis. Een ontwerp van waterstaatsingenieur A.C. Pierson.

Uiteindelijk werd het arresthuis een strafgevangenis voor mannen en vrouwen. Deze uitbreiding vond plaats tussen 1913 en 1916. In de periode van 1946 tot begin jaren '90 volgden talloze verbouwingen. Het stadsblok wordt aangevuld met nieuwe gebouwen. Begin deze eeuw sloot het gevangeniscomplex. Het gebouw deed nog enkele jaren dienst als 'bolletjesbajes', en ging definitief dicht in 2007. De Rijksgebouwendienst en de gemeente Roermond gingen op zoek naar een nieuwe bestemming voor het blok.

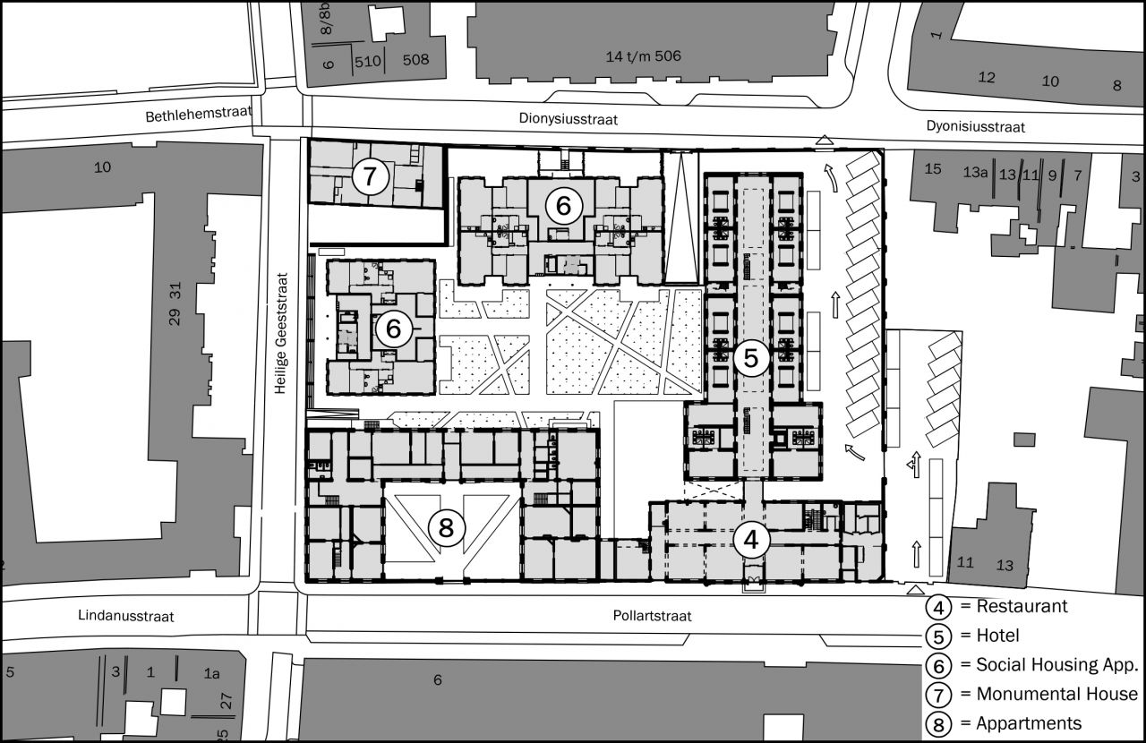
In ons ontwerp kozen we ervoor om het gebouwencomplex weer op te schonen. Om terug te gaan naar de situatie van 1857. Zo ontstond er in ons ontwerp ruimte voor de bouw van nieuwe stadsappartementen. Een kans om het blok af te bouwen in de stedelijke historische context. De gesloten gevangenis gaven we een nieuwe stedelijke functie als hotel. Drie cellen vormen nu samen één hotelkamer.

Na twee selectierondes benoemde de jury ons plan tot winnaar. Onze visie op het stadsblok is inmiddels gerealiseerd en bekroond. Wat dit project voor mij weer bewees, is dat niets zo veranderlijk is als de functie en het gebruik van gebouwen. Mooie gebouwen met een rijke historie blijken de duurzame gebouwen van de stad.