Missiehuis en zorgcentrum De Keerderberg  - Cadier en Keer , Engelman Architecten

Missiehuis en zorgcentrum De Keerderberg

2017, Cadier en Keer

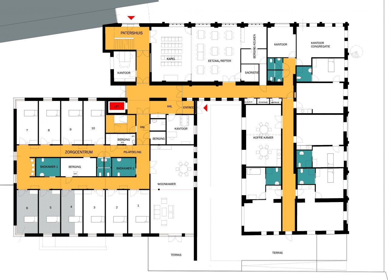
In 1891 vluchtten paters van de Sociëteit voor Afrikaanse Missiën (SMA) van het Franse Lyon naar Limburg. Zij vestigden zich op de Keerderberg in Cadier en Keer. Vandaag de dag is hun Missiehuis nog steeds een woongelegenheid voor paters van de SMA. Onze opdrachtgever vroeg ons niet alleen dit monument te verbouwen, maar ook om een geheel nieuw zorgcentrum te realiseren.

Exterieur én interieur

In het Missiehuis zijn 13 zelfstandige wooneenheden gerealiseerd, en algemene ruimten zoals een kapel en een eetzaal. Uiteraard gebeurde de verbouwing met respect voor de bestaande gevels. Maar we hielden ons ook bezig met de binnenkant. We gaven sfeer- en kleuradvies en deden suggesties voor interieurstukken en de bekleding.

Zorgcomplex met open karakter

Grenzend aan het monumentale complex tekenden we een nieuwbouw voor het kleinschalige zorgcentrum De Keerderberg. Op de begane grond realiseerden we een psychogeriatrische afdeling voor tien bewoners, en op de verdieping 18 zorgappartementen. Daarnaast zijn er enkele gemeenschappelijk ruimten. We gaven het huis een open karakter, zodat bewoners met geheugenverlies en dwaalgedrag zich vrij kunnen bewegen.

“Ik geniet elke dag”

De (oud-)missionarissen, waaronder huisoverste Janssen, zijn zeer tevreden over het eindresultaat: “We zijn heel enthousiast. Engelman Architecten is heel creatief geweest binnen de mogelijkheden die er waren en er is iets heel moois tot stand gekomen. In het gerenoveerde huis voor de SMA-gemeenschap is het nu echt luxe wonen. Het verpleeg- en zorghuis van de Stichting Keerderberg straalt warmte uit en mensen voelen zich hier gauw thuis. Ik geniet elke dag van het resultaat van veel denkwerk en grote vaardigheid.”

 

GerealiseerdWonenZorgHerbestemming
  alle projecten